- 石笼网
- 固宾笼
- 铅丝笼
- 宾格石笼
- 石笼格宾
- 石笼网垫
- 石笼挡墙
- 铅丝网笼
- 铅丝石笼
- 石笼网箱
- 六角网箱
- 石笼网袋
- 固宾石笼
- 石笼护坡网
- 镀锌石笼网
- 加筋石笼网
- 电焊石笼网
- 五拧石笼网
- 包塑石笼网
- 石笼网护脚
- 落石防护网
- 镀锌加筋网
- 景观石笼网
- 高尔凡石笼网
- 铅丝石笼护垫
- 六角石笼网箱
- 焊接石笼网箱
- 矽胶涂塑石笼网
- 生态石笼网挡墙
- 生态护坡网石笼...
- 镀锌石笼
- 格宾网
- 格宾
- 宾石笼
- 格宾垫
- 格宾网-1
- 格宾箱
- Gabion
- 格宾网笼
- 格宾网垫
- 格宾笼网
- 宾格网笼
- 格槟石笼
- 格宾石笼
- 格滨石笼
- 宾格笼石箱
- 格宾网护垫
- 覆塑格宾网
- 生态格宾挡墙
- 热镀锌格宾网
- 高热镀锌格宾垫
- 双隔板格宾网垫
- 锌铝合金格宾网
- 镀高尔凡格宾网
- 镀铝合金格宾网
- 8号线格宾笼价...
- 5%铝锌合金宾...
- 堤坡防护格宾网...
- 矽胶涂塑合金丝...
- 高耐磨有机图层...
- 雷诺护垫
- 绿滨垫
- 五绞网垫
- 绿格网垫
- 格宾护垫
- 生态网垫
- 护坡格宾网垫
- 雷诺石笼护垫
- 格宾石笼护底
- 覆塑雷诺护垫
- 五绞生态网垫
- 镀锌雷诺护垫
- 生态格网护垫
- 热镀锌雷诺护垫
- 双隔板雷诺护垫
- 高尔凡雷诺护垫
- 锌铝合金雷诺护...
- 镀高尔凡雷诺护...
- 生态固滨石笼网...
- 镀高尔凡格宾护...
- 镀高尔凡覆塑格...
- 镀高尔凡双隔板...
- 覆塑五绞生态固...
- 联系电话:0318-7899911
- 联系手机:15531868633
- 联系地址:河北安平正港路898号


宁夏客户订购双隔板雷诺护垫于2019年8月06日发货
双隔板雷诺护垫与单隔板雷诺护垫有什么区别?

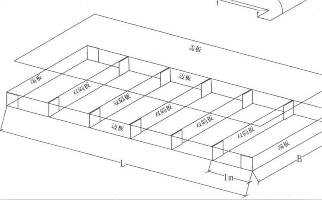
1、制作工艺不同:双隔板雷诺护垫的网箱为一体成型网箱,除了盖子,箱体其他部分是由一张网片折叠而成,即除盖板外,边板、端板、及底板间不可分割。而单隔板雷诺护垫采用组装方式,盖板,边板,端板,底板单独生产组装成网箱,各部分用螺旋钢丝缠绕捆绑,网箱所有边丝均采用粗丝加强格宾网的强度。
2、双隔板雷诺护垫比单隔板雷诺护垫制作过程相对比较省时,但是双隔板雷诺护垫比单隔板雷诺护垫稳定性更好
3、相同尺寸的网箱,单隔板雷诺护垫比双隔板雷诺护垫展开面积要少
双隔板雷诺护垫由低碳钢丝再经过冷镀锌、热镀锌、锌铝合金防腐之后,再经过重型织网机编织成的六边形双绞格网,其厚度在0.17-0.3m的网箱,长度方向每间隔1m采用双隔板隔成独立的单元,双隔板雷诺护垫为一次成型生产,除盖板外,边板、端板、隔板及底板由一张连续不断的网面组成,不可采用独立的双层折叠网面通过绞合在底板上作为双隔板。
雷诺护垫用途:
一、控制和引导河流及洪水:格宾网可使河床河岸得到永久性保护,有效防止水流冲刷河岸使其破坏,引发洪水泛滥,导致生命财产遭受大量损失,水土大量流失。
??二、渠道、运河、河床:天然河流改造和人工渠道开挖时,格宾网可对河岸或河床起到有效的永久性保护,它还能控制水的流量,防止水流失,特别是在环境保护和水质保持上,具有极佳的功效。
??三、护岸护坡:石笼格宾网结构应用与江河湖岸和其坡脚防护方面是非常成功的案例,它充分发挥了生态格网的优点,达到其他方法无法实现的理想效果。
雷诺护垫参数
(1)孔径:60*80、80*100、80*120、100*120、120*15、150*180、70*90
其中双线绞合部分的长度不得小于50mm.以保证绞合部分钢丝的金.0属镀层和PVC镀层不受破坏。
(2)丝径:石笼网分三种丝径—网丝、边丝、绑丝
1.网丝的范围在2mm-4mm
2.边丝一般大于网丝,粗0.5mm-1mm
3.绑丝一般小于网丝,常见的以2.2mm居多
(3)钢丝拉力:不小于350Mpa

安平县昊昌丝网制造有限公司[联系电话:15531868633}是固滨笼挡墙护岸,石笼网,格宾网,雷诺护垫,铅丝石笼的专业生产厂家,省优产品,驰名商标,高新技术企业,专利产品.先进流水线,价格合理,质量保证.
Tags:镀锌格宾笼专业生产厂家|-覆塑雷诺护垫价格|镀锌加筋网厂家|

安平县昊昌丝网制造有限公司[联系电话:15531868633}是包塑pvc雷诺护垫的专业生产厂家,省优产品,驰名商标,高新技术企业,专利产品.先进流水线,价格合理,质量保证.
Tags:铅丝笼护堤专业生产厂家|包塑pvc雷诺护垫厂家|绿滨垫厂家价格|

三维植生麦克垫属于组合式产品,土工材料与绿格网相结合而成,三维植生麦克垫兼具土工材料及绿格网的优点.土工材料为聚丙烯材质,三维植生麦克垫通常选用防腐性能好的镀10%铝锌合金钢丝.三维植生麦克垫被广泛应用于生态自然恢复,市政景观工程,河道边坡防护,公路、铁路路基坡面稳固工程.
Tags:格宾石笼挡墙护坡专业生产厂家|格宾网垫价格|镀高尔凡格宾网厂家|

安平县昊昌丝网制造有限公司[联系电话:15531868633}是双隔板石笼护垫,双隔板石笼护垫厂家,双隔板石笼护垫价格的专业生产厂家,省优产品,驰名商标,高新技术企业,专利产品.先进流水线,价格合理,质量保证.
Tags:镀高尔凡格宾边坡防护专业生产厂家|雷诺护垫挡墙网价格|双隔板合金钢丝护坡技术参数|